![]() |
|||||||
|---|---|---|---|---|---|---|---|
| OFFICE | |||||||
| SELECTED WORK | |||||||
| CONSERVATION/RESTORATION | |||||||
| BUILDINGS | |||||||
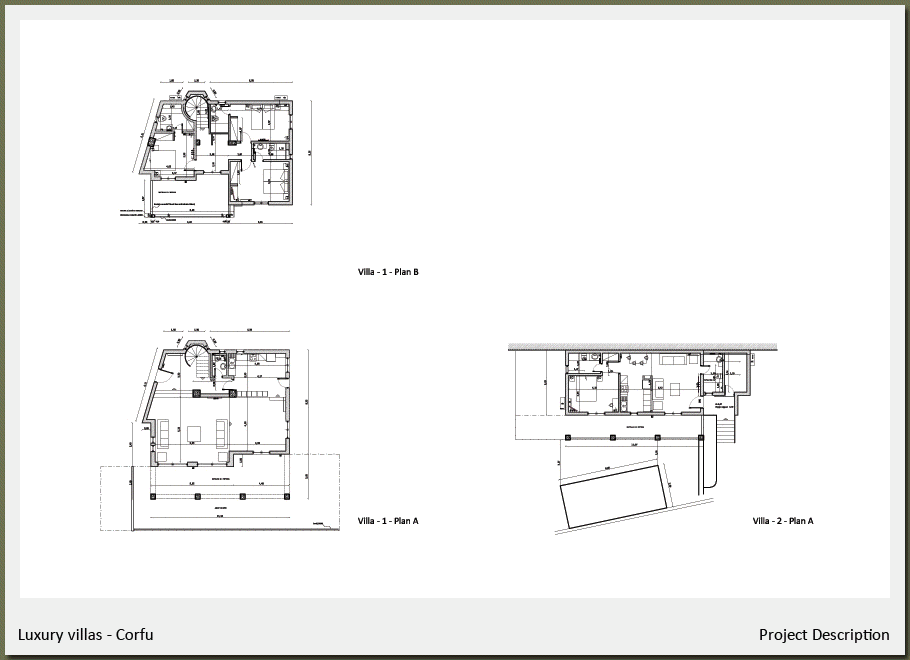
Luxury villas - Corfu (2016)Object of the study was the rehabilitation of existing houses to luxurious villas. The sharp slope of the plot and the restriction in the strict limits of the shell, were the main factors that shaped the final proposal which is characterized by a high level of comfort in movement and unrestricted view to the Southeast. | |||||||
Exonarthex - Bell Tower - Parish Center (2011)The construction of exonarthex with open portico meets the increased demand for space for the congregation of the church of Aghioi Konstantinos & Helene. The exonarthex follows the west view of the church and extends slightly beyond the south and north wall of the church. Thereby, all the morphological elements of the church that formed with stucco are been preserved. The bell tower is located northwest of the church. The tower is a cross shaped building. Each wing of the cross has a narrow opening on the ground level while on the upper part in an arched shaped opening is hanging the bell. The bell tower has a hipped timber roof which rotates 45° in relation to the tower and is coated with copper foil. Its position, northwest of the church, was selected in order to become a landmark for the village alongside to mark the position of the church in the nearby area. The parish center is located in the southeastern area of the plot, in order not to emerged along with the church from the main road of the village. It’s a ground floor building with basement. The main section is covered with an inclined slab while the rest of the edifice has a horizontal one. The main hall opens in the south with large windows, allowing the extension of the indoor outdoors during the summer months. The outdoor is designed having as center the church and aims to enhance and upgrade the aesthetic of the space while creating a pleasant place of rest in the village. The appropriate illumination in each region contributes in defining the special quality of the space. | |||||||
Parish Centre - Parish priest's residence (2011)Τhe parish center locates on the southwest corner of the plot, slightly retreating from the boundary. The parish center is suitable for hosting social events. The main hall opens in the south with large windows, allowing the extension of the indoor outdoors during the summer months. The openings are protected from the sun during the summer months with the horizontal projection of the concrete slab. To the north are placed the restrooms and a small kitchen. The main access to the building is from the west through the courtyard of the church. The residence for the priest is placed in a small designated area with a low height wall, on the northwest corner of the plot. The outdoor is designed having as center the church and aims to enhance and upgrade the aesthetic of the space while creating a pleasant place of rest in the village. A passageway is formed west of the church, connecting the north with the south road of the village alongside with the creation of a boundary between the church and the two edifices. The boundary is enhanced with a row of tall evergreen trees. South of the church, a second passageway allows the entrance from the east. The appropriate illumination in each region contributes in defining the special quality of the space. | |||||||
Exonarthex (2011)Purpose of this study is the design of an exonarthex which will cover the needs of the church. The limited space between the church and the staircase is setting stringent boundaries to the design of the project. The exonarthex must leave enough space in order to allow safe passage of pedestrians. According to the project the proposed exonarthex will incorporate open porticos. The pillars and columns of the porticos connects with arches of which the three central ones of the west side are higher than the others marking the entrance of the church. The facade of the exonarthex follows the west facade of the church with a pitched roof covered with French tiles while the structure is been hidden behind a cornice. | |||||||
Bell Tower of Aghios Georghios (2010)A well-known image, both to residents as well as for visitors of Goumenissa and the nearby area, is the church of Aghios Georghios in the center of the town. The bell tower was incorporated to the church and it was an important landmark for Goumenissa. Furthermore, its original form reflects the principles governing the design of post-Byzantine period for the bell towers. For all the above reasons, the architects chose the new bell tower to displays the main characteristics of the old one. The new location of the tower southwest of the church doesn’t affect its importance for the city's image. The building has a strict appearance with minimum decoratives elements. The surfaces of the walls are enriched from sparsely stone elements and the formation of arched openings with red solid bricks. Three cornices formed with rectangular ashlar stones are dividing the facades into four sections. | |||||||
Bell Tower of Aghios Georghios Europos (2009)The church is situated in the southeastern region of Europos, opposite to the town square. A place that could easily be described as the social center of the city, like those formed in medieval villages since here are gathered the administration - the town hall, the trade and the church of Aghios Georghios. The church dominates the area with its imposing height and volume. Although the church occupies a whole city block and it is placed on the northeastern corner of plot, the remaining space is minimal and fragmented. The bell tower is placed in the southwest corner of the church and it's surrounded with plants in the northern and trees in the southeast. The edges of the tower protrude as buttresses, giving plasticity and stability to the tower. The base is a building with a pitched wooden roof through which the tower is emerging. The building is organized in five floors and a basement and has a hipped timber roof which rests on two reinforced concrete beams. The entire wooden structure of the roof is covered with copper foils. The facades are enriched with the alternation of materials. The openings on the second floor, symmetrically on four sides, two arched openings which are followed by a second arc and include a clock. | |||||||
Residential complex in Athens (2006)Inhabitation in the center of the modern urban environment imposes the definition of interior and exterior space and the redefinition of areas such as: a. open air b. portico-loggia, passable from exterior space and c. "atrium", either in the form of a central courtyard or as a covered space in individual houses. These spaces function as a barrier and bridge between the urban space and the residential building and at the same time defines the plasticity of the complex. The complex is organized around a central courtyard. Frames of reinforced concrete mark the entrance. The central courtyard is surrounded by a four floor U-shaped residential building and a three floor building which follows the old tracing as indicated from the existing old buildings. The building disposes three stairways. The U-shaped building consists of two storey apartments developed on the two u floors while the ground floors are elevated from the street level due to the development of the underground. The terraces of all apartments are being developed on the rooftops of the lower level apartments and sometimes they developed in recess. In collaboration with the architect G. Sivrides. | |||||||
| LANDSCAPE | |||||||
| PUBLIC BUILDINGS | |||||||
| NEWS | |||||||
| CONTACT | |||||||
Terms of use
Terms of useConvention of Use The visitor/user of www.kanavakis.gr, grants his consent in the terms of use below, that are in effect for the total of content, pages, graphic, pictures, drawings, photographs and files that are included in this web site. Consequently, he owes to read carefully these terms before the visit or the use of the pages and services of the site. If the visitor doesn’t agree with these terms, he has not to use the services provided by www.kanavakis.gr. The visitor/user is requested to check the content of those pages for potential changes . The continuation of use www.kanavakis.gr even after changes , means the unconditional on behalf of the visitor /user acceptance of these terms. Visitor/user’s Responsibility The visitors/user of pages and services of www.kanavakis.gr takes over the responsibility for any damage caused in this site, from bad or illicit use of its services. Restriction of responsibility The owner of this website, expressly recants all the authorisations that concern this network place, or explicit, or implied, included, but no limited, implied authorisations of merchantability and appropriateness for a concrete aim. In no case he will be in charge to you for all kind of damages, included by any chance direct, indirect, special or consequent, that results from or concerning the each use of this site or linking site. The applied law may not allow all the exclusivities mentioned above, therefore all or part of this paragraph can not be applied in you. Each right that has not been expressed expressly with the present text is committed. Exclusion of legal advices The content and the information that are included in www.kanavakis.gr constitute an offer to the visitor /user of the www.kanavakis.gr and to the community of users of Internet generally and these are not able in no case to be considered as legal advices neither conceal in no case any such relation between lawyer and customer or prompt for the enterprise or not concrete actions. The www.kanavakis.gr undertakes the collection, treatment and distribution of its content, without however to guarantee the plenitude, the sufficiency and generally the appropriateness of its content and the absence of possible errors, as also the attendance of third parties (individual or legal) at the primary production and its collection. Also it does not guarantee that the pages, the services and the content will be provided without interruption, without faults and that the errors will be corrected and that the same or other related site or servers via which these are placed in your disposal, are provided without "viruses" or other detrimental components. Consequently, the visitors/users of the www.kanavakis.gr, by using its services with their own initiative, undertake the responsibility of examining the provided information with the sources. Links to other sites The www.kanavakis.gr does not check the availability, the content, the policy of personal data protection, the quality and the plenitude of services of other web sites and pages in which it refers via links, hyperlinks or advertising banners. Consequently for any problem that will present during the visitor owes to address directly in the equivalent web sites and pages, which have also the responsibility for the benefit of their services. It should not be considered that the www.kanavakis.gr adopts or accepts the content or the services the web sites and pages in which it refers or be connected with them at any other way. Applicable right In no case this website does not traffic personal data in third parties (article 11 Low. 2472/1997). These data are exclusively used from www.kanavakis.gr in order to improve its services. Exception constitutes the case where the particular information being asked with juridical decision by the Law. The terms and conditions of use of the website mentioned above, as well as any modification, change or alteration, are conditioned and supplemented by the Greek right, the European union right and the relative international conditions. Any provision of above terms is rendered opposite to the law, ceases ipso jure to be in effect and will be removed from the present, without to offend the force of the rest of the terms. The present text constitutes the total agreement between the www.kanavakis.gr and the visitor /user of the pages and its services and commits only them. No modification of these terms will be taken into consideration and will not constitute department of this agreement, if it has not been formulated written and has not been incorporated in this. Copyright The logo of www.kanavakis.gr that is presented in the network place www.kanavakis.gr is not allowed to be copied or used without the written consent of the company. Except of the expressly reported exceptions (intellectual rights of third person, collaborators’ and institutions’ ), all the content of the website included pictures, graphics, photographs, drawings, texts, provided services and generally all the files of this network place - apart from the deposited logos of entertained companies -, constitute intellectual property, and logos of services of www.kanavakis.gr and are protected by the corresponding provisions of Greek right, European right and international conventions and conditions. Consequently, none of them is able to constitute all or partly subject of sale, copy, modification, reproduction, and republication or be downloaded, transmitted or distributed with any way. Exception constitutes the case of individual storage one and only copy of part of the content in a simple personal computer, for personal and no public or commercial use and without elimination of their clue of origin from the www.kanavakis.gr, without being offended with no way the rights of intellectual and industrial property. The rest of the products or services that are reported in the electronic pages of the present node and bring the logos of the corresponding organisms, companies, collaborators of institutions, unions or publications, constitute their own intellectual and industrial property and consequently these institutions bring the relative responsibility. The visitor/user comprehends and accepts that he is not provided by the right to repeat, to copy, to sell and/or to exploit commercially with any way, total or part of the content of this network place. |
|||||||
| (c) 2013 G. KANAVAKIS | |||||||
| GR | EN | ||||||







